Svenska fyrar

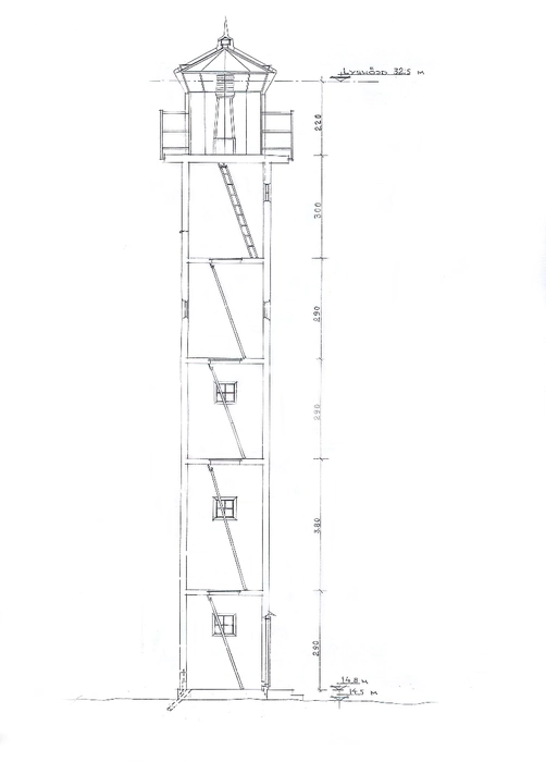
Väderöbod

Aktiv fyr · Tanums kommun · Västra Götalands län

Väderöbod
Ljussignatur
LFl Al WR 60s
Lysvidd
Lysvidd: 16 NM
Lyshöjd
Lyshöjd: 32.4 m
Koordinater
58.54200, 11.03292

Bilder

Bidra med en bild

Har du tagit en bild på Väderöbod? Ladda gärna upp den här så granskar vi den innan publicering. Max storlek 10 MB. Endast JPEG, PNG, WebP eller GIF. Genom att skicka bilden intygar du att vi får visa den på svenskafyrar.se.

Vi sparar bilden tillfälligt tills den har granskats.
Namnet visas tillsammans med bilden.

Karta