Svenska fyrar

Väderöbod

Aktiv fyr · Tanums kommun · Västra Götalands län

Väderöbod

Foto: Lars Reidar · Licens: CC0

Ljussignatur
LFl W 8s
Lysvidd
Lysvidd: 6 NM
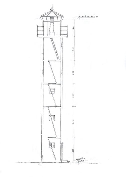
Lyshöjd
Lyshöjd: 32 m
Admiralty
C0335
Koordinater
58.54167, 11.03056

Bilder

Bidra med en bild

Har du tagit en bild på Väderöbod? Ladda gärna upp den här så granskar vi den innan publicering. Max storlek 10 MB. Endast JPEG, PNG, WebP eller GIF. Genom att skicka bilden intygar du att vi får visa den på svenskafyrar.se.

Vi sparar bilden tillfälligt tills den har granskats.
Namnet visas tillsammans med bilden.

Karta